a dialogue between water and fire!
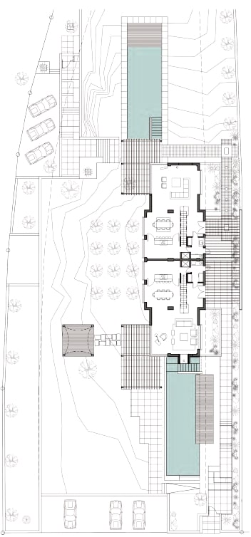
Floor to ceiling windows and doors diminish the severity of the volumes while taking advantage of the natural light. This building that hosts two residencies for a brother and sister is laid out along a main axis, which serves as an imposing façade. The interior is quite simple, with a loft like living room with a fire place by the swimming pool and an active kitchen. Three bedrooms are upstairs. There is a roof terrace by the vaulted zinc roof above the master bedroom. Large windows in the dinning room, a corner window in the living room, facing south are contrasting with smaller ones on the north side, letting in light while defining specific rooms of the house. A glass opening at the back of the fire place, allows for a dialogue between water and fire!










