quite a contemporary way of living
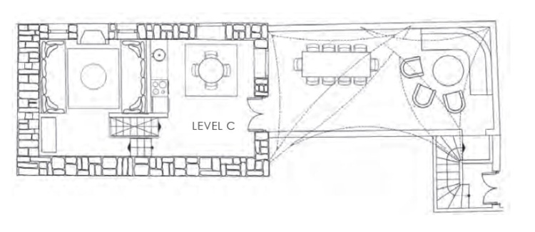
The project located on the island of Hydra – a world heritage place – required renovation and enlarging; an otherwise dull house. A third level was excavated and an open layout living room has been created by exposing the space of the attic. Although the exterior had to remain untouched due to building code restrictions, the interior with its open layout implies quite a contemporary way of living.









