Skip to content Skip to footer
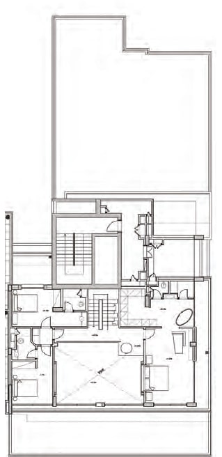
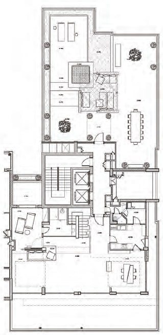
apartments for singles 05
Location:Beiruth, LebanonYear:2012Architect:Panos Georganas

Atlas Architecture © 2026. All Rights Reserved.